House sitting

Po dlhšej dobe znovu zdravíme z južnej pologule. Mali sme dosť nabitý program, ale o tom v ďalšom článku. Práve tu máme najteplejšie dni v roku. V sobotu bolo rekordných 35°C v tieni a normálne je tu tak 30°C. Leto je v plnom prúde a my plánujeme zase nejaké to kúpanie v oceáne.

Dnes by som vám chcela napísať o House sittingu, ktorý sa nám podarilo získať.

V Austrálií funguje niekoľko stránok na House sitting, ale pekne od začiatku… čo to vlastne je?

House sitting je, že sa niekomu staráte o domácnosť, zatiaľ čo on je niekde odcestovaný. Takto získate za údržbu nemovitosti (prípadne staranie sa o domácich miláčikov), bývanie zadarmo. Na stránkach sa môžete zaregistrovať, vytvoriť profil a nájsť rôzne domy/byty po celej Austrálií, ktoré potrebujú niekoho, kto sa o to postará. Môžete si vyfiltrovať nehnuteľnosti podľa štátu, podľa dĺžky house sittingu, i podľa typu o čo všetko sa máte starať. Často sú to psy, mačky, kone, niekedy len záhrada… alebo údržba bazénu.

Toto bol na mesiac náš dom.
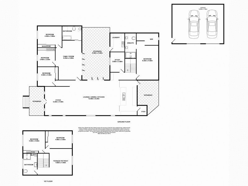
Pôdorys domu – mal 6 ložníc a obrovský obývák s kuchyňou.

Je to tu veľmi populárne. Mali sme veľké šťastie lebo z cca 20tich žiadostí si nás vybrali len jedni, a ostatní odpísali, že už niekoho majú. Vybrala si nás nemecká rodina, ktorá odlietala pred Vianocami na mesiac do Nemecka. Bolo sa treba starať o záhradu (kosiť, zalievať a zbierať úrodu) a o tri kočky (Fuzzy, Fluffy a Rocky), z toho Rocky bol diabetik, a každé ráno a večer musel dostať dávku inzulínu.

Stretli sme sa teda najprv s Marikou (majiteľkou domu) a neskôr aj s jej manželom Dietmarom, ktorý je profesorom na QUT (Queenslandskej univerzite). Vysvetlili nám všetky procedúry, a dohodli sa na nástupe. Keď sme prišli prebrať dom, dostali sme od Mariky asi štyri A4 informácií, kde čo nájsť, čo robiť ak by predpovedali silné búrky a pod. Pohostili nás a Jirko ich bol podvečer zaviezť na letisko ich Passatom.

Austrálsky Passat mal blinkre na strane ako európske autá, tak to bolo vtipné, zvykať si znovu na páčky naopak (blinker vs stierače). Na chodbe nám nechali všetky kľúče od áut keby padali krúpy, aby sme ich schovali pod strechu. Toto si napríklad neviem predstaviť u nás, že by vám niekto nechal celý dom, a ešte aj kľúče od troch áut.

Rocky sedí na bráchovi Fluffym, vzadu je Fuzzy (12-ročná kočka zo Singapuru).
Rockymu diabetikovi sme venovali viac lásky a starostlivosti, aby sa cítil dobre.

Zo začiatku som mala strach z dávania injekcie (dával ich manžel), ale po čase to už bola rutina. Ihla bola veľmi tenká a Rocky to ani necítil. Bol vycvičený na túto procedúru. Vykonávala sa vždy pred jedlom. Sám si vyskočil na žehliacu dosku v práčovni, my sme ho položili na bok, dostal injekciu a už sa tešil na žrádlo.

Tiež vás zaujíma, ako sa dá zistiť, že má zviera cukrovku? Rocky začal rapídne chudnúť a veterinár mu to zistil z krvi. Nevýhodou je, že dávkovanie inzulínu nič nevylieči. Nerieši sa príčina, len to, že je teraz odkázaný na dávky do konca života (dobrý business, nie?). Môžem doporučiť túto knihu, kde je cukrovke a jej “liečeniu” venovaná kapitola. Patrí medzi moje obľúbené.

Alfresco, strašne dobrá vec. Môžete mať párty aj keď prší.
Rocky si to, keď mohol byť dnu, užíval. Normálne bývali všetky kočky vonku a dnu mohli len počas dňa, keď tam niekto bol.

A takto sme si tam celý mesiac nažívali. Boli sme radi, že pomôžeme a zároveň ušetríme na nájme. Bolo veľmi príjemné, mať kočičkovú spoločnosť, vybavenú kuchyňu, záhradu… občas sme si zahrali na terase šípky, alebo pozerali lyžovanie na Eurosport-e (mali káblovku) a cítili sa ako doma. Lenže čas sa krátil a my sme museli znovu vymyslieť, kde budeme bývať. Verila som, že nám to “z hora” znovu nejako zariadia. Premýšľali sme či dom (ale tie sú väčšinou nevybavené) alebo byt (vybavený). Dúfam, že si znovu nájdem čas a v ďalšom článku vám napíšem, ako sme nakoniec dopadli.

Majte sa pekne.

3 thoughts on “House sitting

Add yours

  1. Nějak mi není jasné z čeho tam vlastně žijete, přiznám se , že jsem nečetla všechno, ale psala jste , že poslední zaměstnání vás neuživí, Nebo žijete ze zásob? Když jste odjížděli měli jste již pracovní vízum? Nebo to ani na delší pobyt není potřeba?

    Like

  2. [1]:  Keď sme odchádzali, mali sme už pracovné vízum. Trvalo takmer dva roky kým sme ho získali a na toto všetko sme šetrili asi dva roky, takže keď práca nie je (lebo tú mám podľa toho ako ľudia predávajú domy), tak žijeme z úspor. Teraz je obdobie, kedy nás tá občasná práca dokáže uživiť – nájom + jedlo. Agent nás akosi neupozornil na to, že prvý professional job sa tu hľadá veľmi ťažko lebo často požadujú miestne skúsenosti. Teraz je tých príbehov plný internet https://www.google.com.au/amp/www.dailymail.co.uk/news/article-4755792/amp/Egyptian-migrant-forced-Australia-work.html

    Like

Leave a comment

Create a website or blog at WordPress.com

Up ↑

Design a site like this with WordPress.com
Get started